Are you a tiny house enthusiast looking for inspiration? Look no further than House for G, a charming tiny home that has achieved the perfect balance between comfort and convenience. Located in Kisaradu Chiba, Japan near Tokyo Bay, this 66-square-foot tiny home was designed by “Kurosawa Kawara-ten” to provide its elderly owner with an intimate living experience while still allowing them to appreciate their surroundings. With its tasteful exterior design and innovative floor plan, House for G will certainly inspire any admirer of the tiny house movement!
The site for this charming tiny home had a steep slope with lots of flowers, plants, and trees



A charming weekend house tucked away in the suburban landscape of Kisaradu Chiba Japan provides a tranquil respite from fast-paced city life. From lush greenery and vibrant blooms to warm fireside gatherings – this home has been many years in the making for an elderly couple who have spent countless hours cultivating their garden with dreams of one day building a place where they can escape for restful weekends surrounded by nature’s beauty.
Related: Japanese Forest House

Through an interactive design process, Kurosawa Kawara-ten were able to help their client realize the beautiful house of their dreams – a dream that had been conceived long ago when they wished to embark upon a career in architecture. They identified three key elements for achieving this vision:
- Unique and unconventional proportions set it apart from other homes
- Overlooking natural landscapes outside.
- Minimal footprints so nature could remain unharmed.



Additionally, walls needed to be included with ample space available for displaying artwork while ensuring rooms are welcoming enough so family gatherings can comfortably take place here often. To make the most of this unique property condition, they found a creative solution: building two stories in a cantilever style and keeping any plants or trees from hindering its progress. The result? An efficient first floor to store all necessary water equipment with an airy living room on the second level that looks out onto a beautiful green slope; topped off by rooftop access where you can take in stunning views of Tokyo Bay!



Despite a tricky planning process, the structural architect achieved an impressive feat-building a cantilevered second floor using thick lumber trusses to support it. This allowed for unique viewpoints and opportunities such as kitchen shelving or hanging spots like hammocks. With budgetary restrictions in place, most of the interior finishes were kept minimal with gray walls contrasted by wood accents along inspiring foundations made up of plasterboards, fiberboards, and veneers.




They hoped to build a house that would maximize the floor area while preserving the nature on the site.
This home offers the perfect balance of luxury and convenience. The first-floor exterior wall is wooden panels, while the second floor has galvanized maintenance-free options to make life easier for its elderly owners. Despite being located in a suburban area that’s close enough for commuting, it still preserves nature with small patches of grass and trees among bald concrete carports – giving off an ambiance similar to staying at a once-a-year resort!


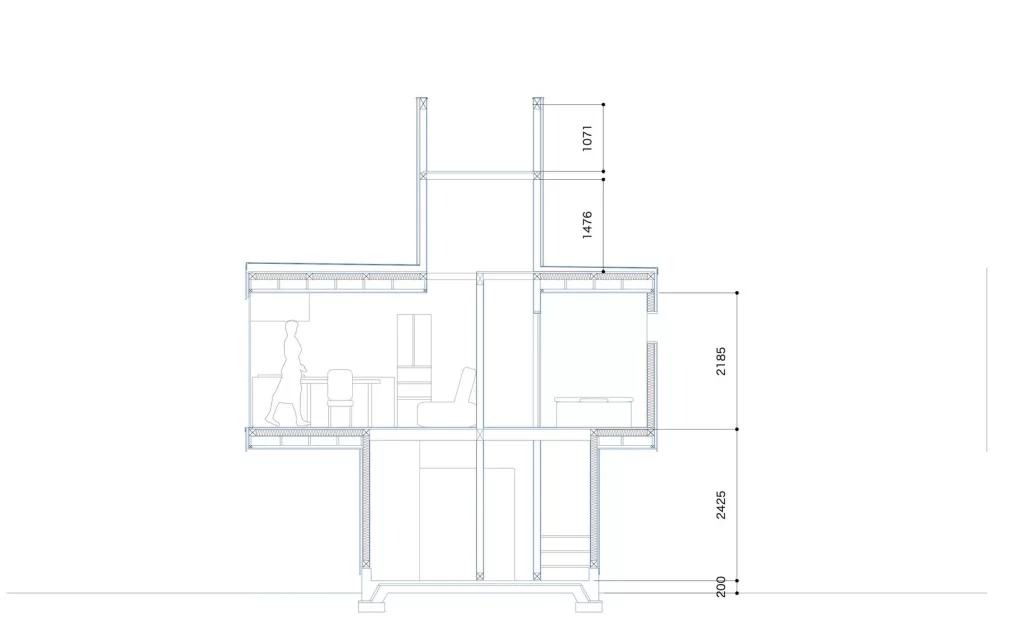
Floor plan



House for G is a perfect example of what can be achieved when design and nature come together in harmony. From its unconventional proportions to the creative process that went into building it, this tiny home has been crafted with great care. Its cantilevered second floor allows for unique viewpoints while preserving natural landscapes outside and providing ample space for family gatherings inside. It also offers luxury without compromising on style or leaving too much of a footprint behind – making it an ideal weekend retreat! With House For G as inspiration, you too can build your own dream house surrounded by nature’s beauty.



Comments
Loading…