Looking for the perfect vacation spot? Look no further than this two-story beach house cabin by the beach! With plenty of space for your whole family, this cabin has everything you need and more. Plus, with floor plans that are easy to follow, you can have your dream vacation up in no time. So what are you waiting for? Start planning your next vacation today!

This amazing two-story beach house cabin is a perfect mix of modern and nature. The Croxatto y Opazo Arquitectos designed home uses natural materials like wood and stone to create a warm, inviting atmosphere. At the same time, the use of glass and metal gives the home a sleek, modern look.
The home is located in the beautiful city of Matanzas, Chile is a nature lover’s paradise. It’s perfect for those who love spending time outdoors, as it sits on a large lot with plenty of room to run and explore. But don’t worry, there’s also plenty of indoor space for when you want to relax or entertain guests. The open-concept floor plan makes it easy to move around and enjoy every part of the home.
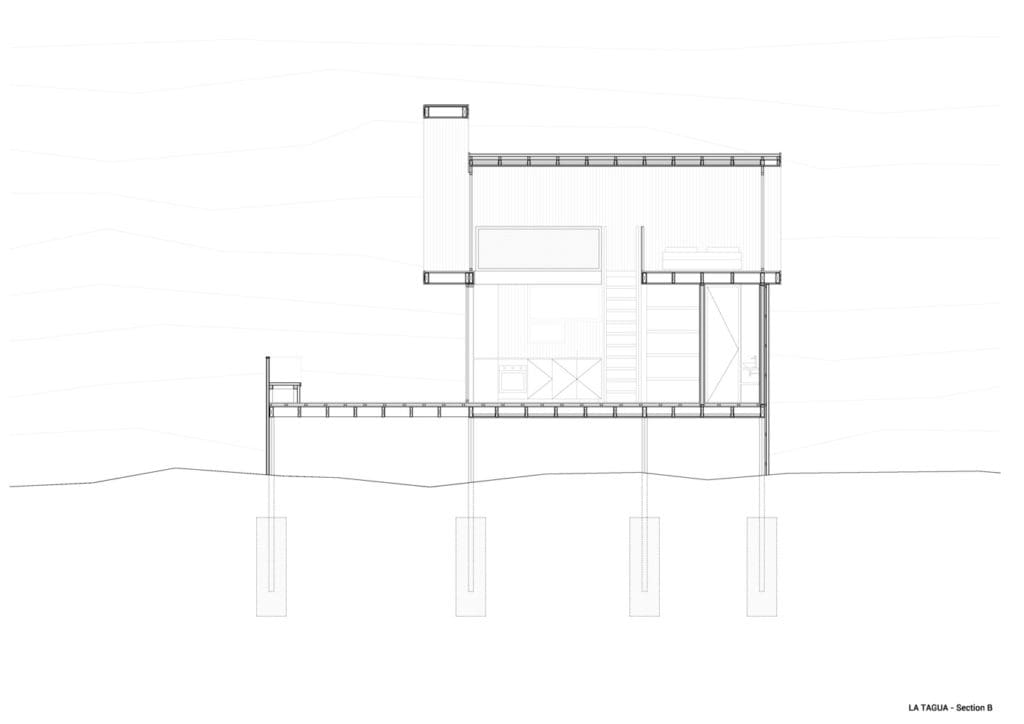
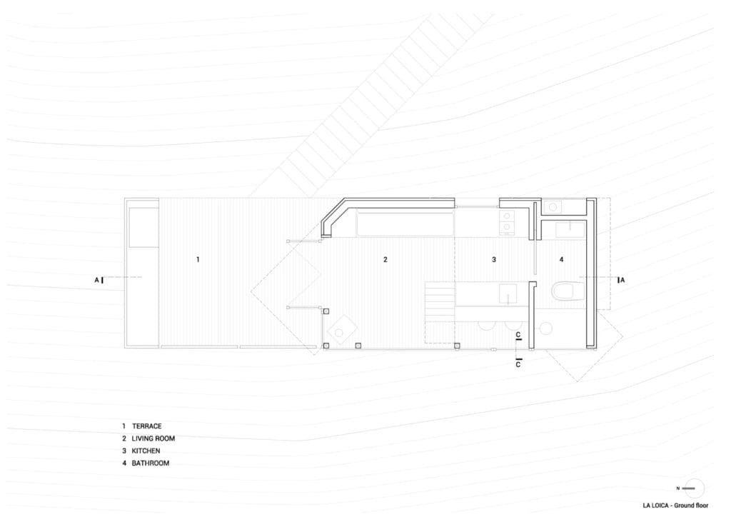
There are 2 cozy two-story beach house cabins on the property, each with its own unique charm. La Loica is an airy cabin with a wooden roof, and has a 20sqm area and walls, while La Tagua has a charming stucco with a 25 sqm area.
When designing the cabins, the architects had one goal in mind: to create a space that would make you feel one with nature. And they succeeded. From your perch atop Lagunilla hill, you have an unobstructed view of the Pacific Ocean and its resident sea lions. The sunsets are simply beautiful, and at night the stars are so bright they seem close enough to touch.

The two-story beach house cabins themselves are cozy and comfortable, with all the amenities you need for a relaxing getaway. Each has a kitchenette, bathroom, and bedroom/living area with a wood-burning stove for chilly nights. Best of all, there is no TV or internet to distract you from enjoying your surroundings.
The open-concept floor plan makes the most of the incredible views of the ocean and mountains, and the large windows let in plenty of light. The modern kitchen is perfect for cooking meals with friends, and there’s plenty of space for relaxing in the living room.
























Comments
Loading…