Mio

covo-tiny-house-6

covo-tiny-house-7

covo-tiny-house-8

covo-tiny-house-9

covo-tiny-house-10

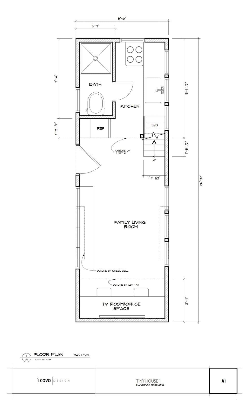
Thoughtfully designed with the knowledge worker in mind, the Covo Mio is packed with features that make working from home a technological joy. Features such as integrated smart home lighting, heating and security, a sit/stand work desk, built-in 55” monitor and plenty of 2.4 amp USB charging ports ensure that you’ll be able to work with comfortable efficiency. A full working kitchen including a stainless steel cooktop and oven, and plenty of clever storage makes healthy cooking easy. And built in stereo speakers, a seven foot bar top, and our innovative awning window make entertaining simple and fun.

Subscribe to Tiny House Listings on YouTube for lots of upcoming tiny house video tours here.

A custom tiny house on wheels with an abundance of windows for lots of natural light. Built by Covo Tiny house Company in Portland, Oregon.

Comments

Leave a Reply

Your email address will not be published. Required fields are marked *

4 Comments

  1. I keep wondering why Americans use so much dark wood in small rooms. It looks even smaller. I would paint the end plywood and overhead beams in a lighter color. The end wall disappears with the drakness and the dark beams looks like they will implode on you.

  2. There should never be a bathroom without even a very tiny sink. If the kitchen sink is being used while preparing a meal by someone else than the one in the bathroom, it doesn’t sound too healthy to share the sink. Imagine a women in a period doing her thing in the bathroom and then going to a sink full of veggies for the meal being prepared. Or if anyone is sick and using the bathroom. Where is the sink?

    • I understand what you are saying, Mary, but living alone, I plan on only one sink when I build my tiny house. To me, having two sinks take up space that could be used for something else seems silly. To each their own.

Loading…

0
28 liberation tiny home 1

28′ Liberation

restored 1971 airstream sovereign 1

71′ Airstream Sovereign